Maître d'ouvrage: Etat de Genève
Architecte: François Ehrensperger dans le cadre de l'atelier A7
Localisation: Genève
Phase: Conception
Travaux: Conception
Année 2003
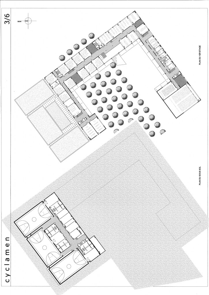
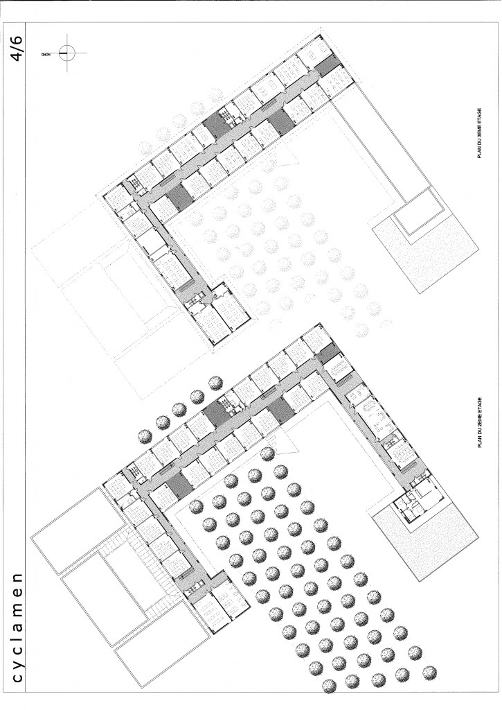
Concours pour la construction d’un Cycle d’Orientation.
Concours à deux degrés.
Sélectionné pour le 2ème tour.






































