Maître d'ouvrage: Privé
Architecte: François Ehrensperger
Année de réalisation: 2020 - 2025
Localisation: Genève
Phases:
Travaux: Conception
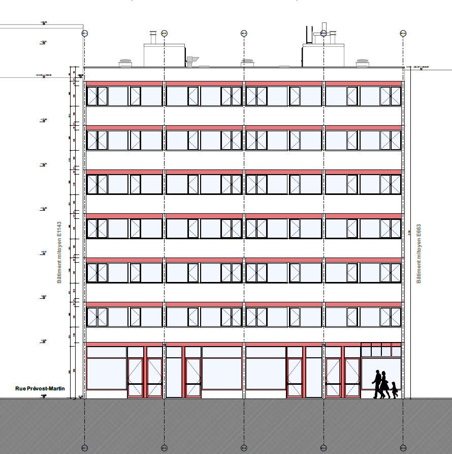
Surélévation de deux bâtiments sur deux niveaux supplémentaire et installation d’un ascenseur pour un bâtiment.




















